NetBuilt Custom and Pre-Designed Homes
2-Bedroom NetBuilt
Efficient. Refined. Flexible.
Thoughtfully designed for simplicity and performance, our 2-bedroom homes offer open living spaces, strong indoor-outdoor connections, and high-performance envelopes—ideal for couples, second homes, or downsized living.
Available with 3 trim package options and alternative roof styles
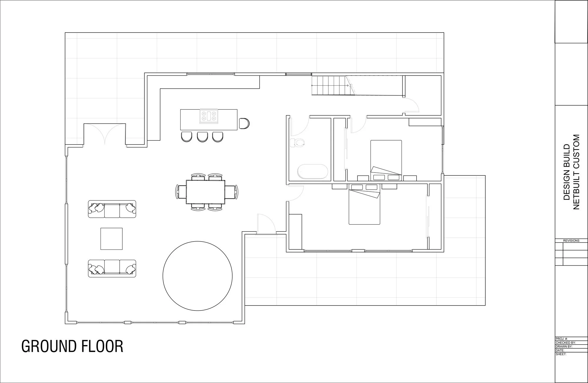
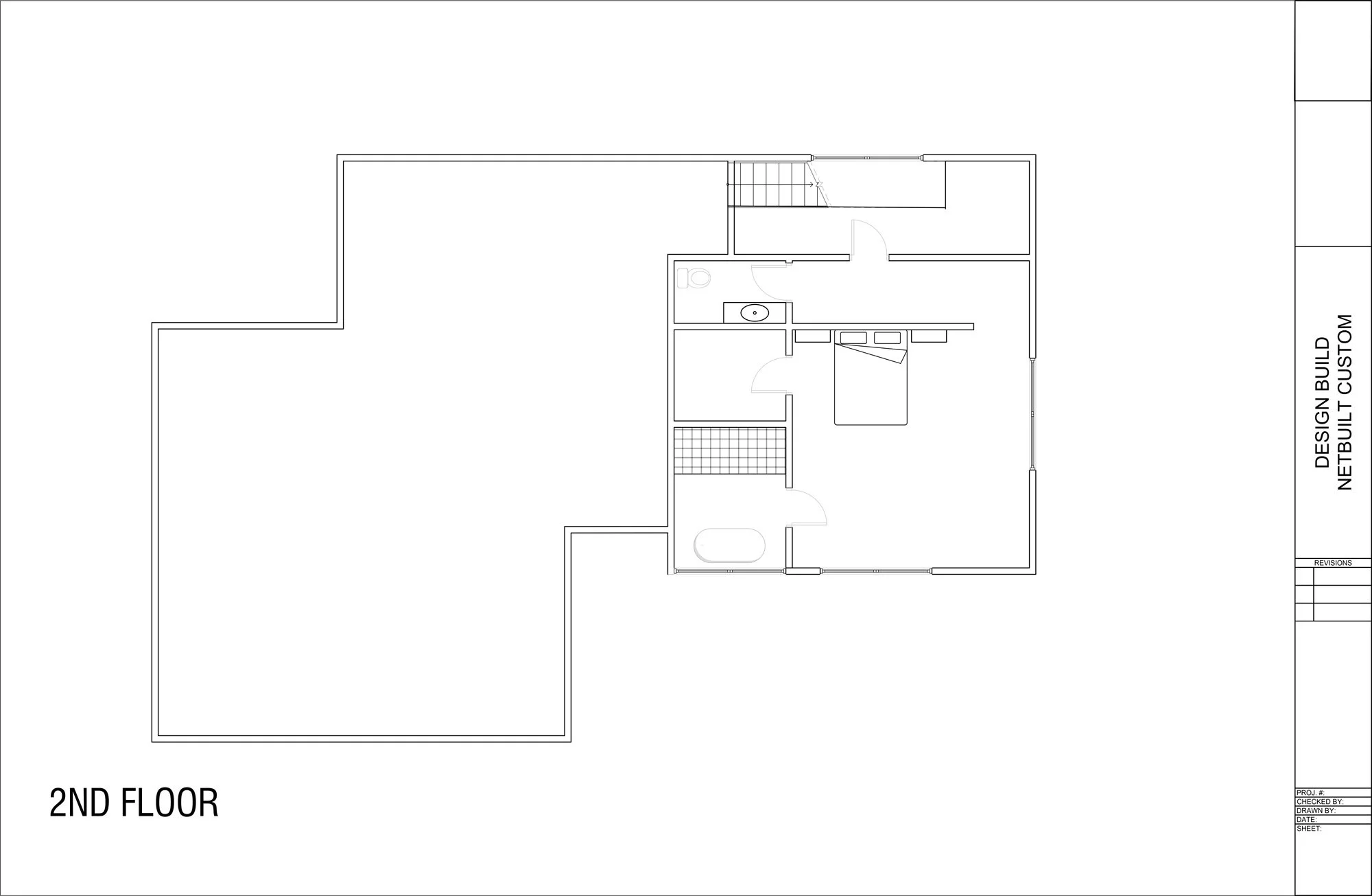
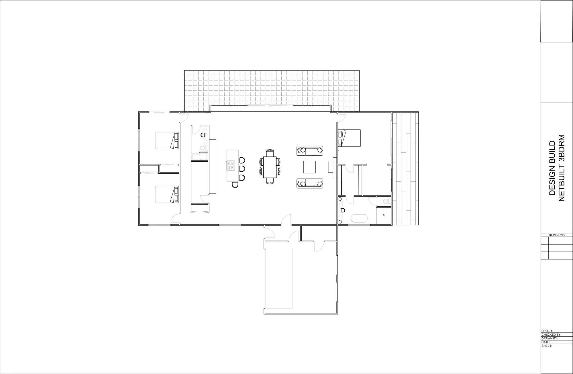
3-Bedroom NetBuilt
Balanced living, designed to perform.
Our most versatile layouts combine generous living areas with adaptable bedroom configurations. Designed for full-time living, these homes balance comfort, efficiency, and modern mountain aesthetics.
Available with 3 trim package options and alternative roof styles
4-Bedroom NetBuilt
Spacious, Modern, and Future-Ready.
Designed for families and multi-generational living, our 4-bedroom homes offer expansive layouts while maintaining net-zero performance standards. Clean lines, durable materials, and flexible spaces support evolving needs over time.
Available with 3 trim package options and alternative roof styles
Custom Design + Build
Architecture shaped by place and performance.
Our integrated design-build team collaborates with you to create a home that responds to topography, views, solar orientation, and programmatic needs—while maintaining clean lines, durable materials, and a refined modern aesthetic.
Available with 3 trim package options and alternative roof styles
Services
Design & Planning
Architectural and engineering design
Site planning and mapping
Permit expediting
Project management
Site & Structure
Excavation and machine services, drainage solutions
Demolition services
Concrete: ICF walls, block and slab work
Framing and sheathing
SIP panel construction
Systems & Utilities
Electrical, plumbing, and HVAC
Insulation: rainscreens, spray foam,
regular and eco alternatives
Interior
All carpentry
Sheetrock mud and tape
All painting
Flooring: hardwood, engineered, vinyl, tile, cork
Kitchens and bathrooms
Exterior Builds
Roofing
Windows and door installation
Decking and patio
Additions and house extensions
Accessory buildings and studios
Outdoor
Landscaping
Stone work

